For Lease - Retail Space
Located at the intersection of Olive Boulevard and Woodsmill Road. Less than 1 mile from the newly constructed Highway 141. This Shopping Center is anchored by Dierbergs and Brunswick Bowl.
Available Retail Spaces include:
#1 2,601 sf
#9 3,651 sf
#13 4,426 sf
#16 2,124 sf
#21 2,375 sf
#30 5,403 sf
Available Office Spaces include:
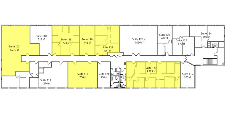
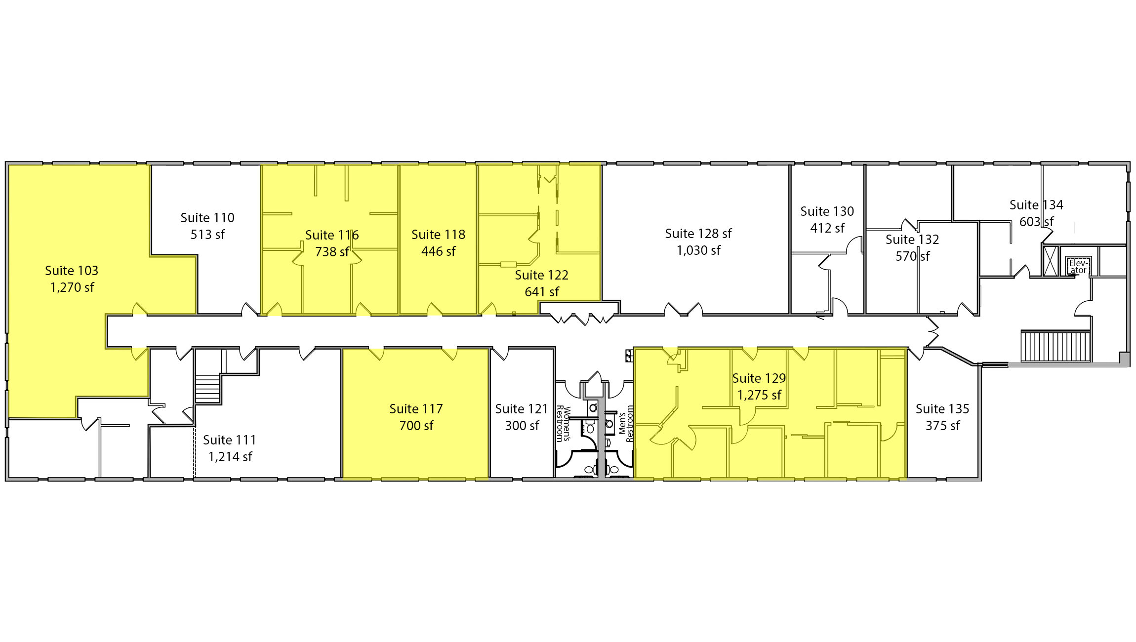
Offices East Suite 103 1,270 sf
Offices East Suite 116 738 sf
Offices East Suite 117 700 sf
Offices East Suite 118 446 sf
Offices East Suite 122 641 sf
Offices East Suite 129 1,275 sf
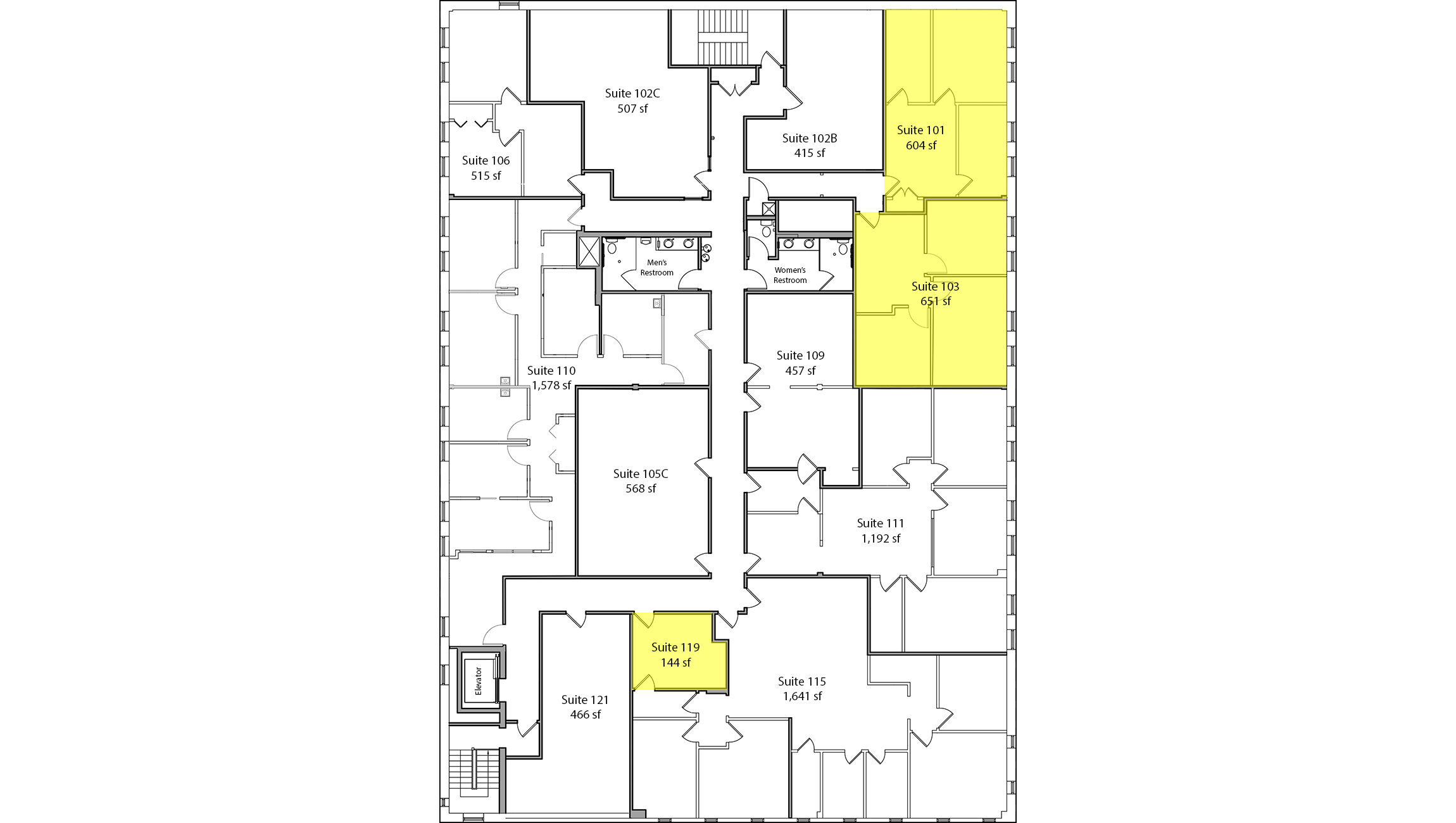
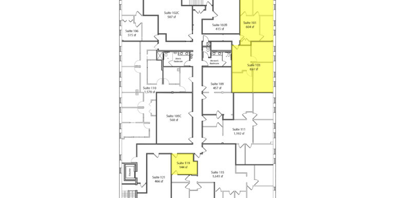
Offices West Suite 101 604 sf
Offices West Suite 103 651 sf












